產品中心
聯系方式
- 公司:廣東綠能環保器件(河源)有限公司
聯系人:王經理
電話:15917062796
網址:www.mytthdhr.com
郵箱: 2103786423@qq.com
地址:總部-廣東省河源市源城區紅星路南德義苑B108號;佛山辦事處-廣東省佛山市南海區丹灶鎮金沙沙邊工業區;淄博辦事處(二廠)-山東省淄博市雙楊鎮楊寨工業園
氣箱式脈沖布袋除塵器
廣東綠能環保作為脈沖布袋除塵器的生產廠家,多年來已研發出多種型號的布袋除塵器。LN-LFGM系列氣箱式脈沖布袋除塵器(也稱為LN-LFGM離線分室高壓脈沖布袋除塵器)是本公司在美國富樂公司分室脈沖布袋除塵器技術基礎上研制的高效清灰、可全年不停產檢修的新型袋式除塵器,其技術性能達到了二十一世紀國際先進水平。
從清灰方式上分,脈沖布袋除塵器可分為離線清灰布袋除塵器和在線清灰布袋除塵器兩種。在線清灰是指當脈沖閥噴吹壓縮空氣對其中一行除塵布袋進行清灰時,該布袋除塵器的所有濾袋(包括被清灰的這一行布袋)都處于過濾工作狀態,在線清灰布袋除塵器也被叫做行噴清灰布袋除塵器。離線清灰是指采用氣箱方式將所有濾袋分組隔離,每個氣箱內的布袋在清灰時可以通過各自的風閥(提升閥)完全停止過濾,也就是實現離線清灰,而其它氣箱內的布袋則保持正常過濾狀態。由于離線清灰脈沖布袋除塵器采用氣箱方式將所有濾袋進行了分組隔離,因此又被稱為氣箱式脈沖布袋除塵器。又因為氣箱式脈沖布袋除塵器是針對每個氣箱(也叫氣室)內的布袋進行分批次清灰,且氣箱內的布袋數量相比于行噴清灰布袋除塵器一行布袋的數量更多,所采用的壓縮空氣也需要更大壓力,因此氣箱式脈沖布袋除塵器又被稱為離線分室高壓脈沖布袋除塵器(LFGM即“離線分室高壓脈沖”的拼音首字母縮寫)。
離線清灰布袋除塵器由于將清灰和過濾分開,因而清灰時不易產生掉落的粉塵二次吸附到布袋上,有利于除塵器內粉塵的沉降,因此清灰效果好。因此,在陶瓷廠、水泥廠、石灰廠、火電廠等廢氣粉塵濃度較高的行業,其粉塵治理工程上廣泛采用LFGM氣箱脈沖布袋除塵器。
另一方面,LN-LFGM型氣箱式脈沖布袋除塵器的每個氣箱可以單獨停風,不影響其它氣箱內布袋的過濾工作,這讓LN-LFGM氣箱脈沖式布袋除塵器具備了在不停機狀態下檢修的獨特功能。也就是說LN-LFGM型氣箱脈沖布袋除塵器可以一邊正常進行除塵工作,一邊對該除塵器開展逐個氣箱換袋或維護檢修工作,因此LN-LFGM氣箱式脈沖布袋除塵器特別適合作為常年不停產的生產設備的配套布袋除塵器,例如陶瓷廠輥道窯煙氣布袋除塵器、水泥廠旋窯煙氣布袋除塵器、鋼鐵廠高爐煙氣布袋除塵器、玻璃廠馬蹄窯煙氣布袋除塵器、銅材廠熔煉爐煙氣布袋除塵器、鋁材廠熔鑄爐煙氣布袋除塵器、火力發電廠鍋爐煙氣布袋除塵器等等。

離線清灰脈沖布袋除塵器工作原理:
含塵氣體從LFGM型分室清灰脈沖布袋除塵器的進風均流管進入各氣箱下部箱體,在煙氣導流裝置的導流下,大顆粒的粉塵被分離,直接落入灰斗,而較細粉塵均勻地進入布袋除塵器的中部箱體而吸附在濾袋的外表面上,干凈氣體透過濾袋進入布袋除塵器的上箱體,并經各離線閥和排風管排入大氣。
LN-LFGM離線清灰脈沖布袋除塵器的結構由過濾室、濾袋、凈氣室、灰斗、卸灰裝置、噴吹清灰裝置、電控系統組成。LN-LFGM分室脈沖布袋除塵器又分為耐高溫型分室脈沖布袋除塵器和常溫型分室脈沖布袋除塵器兩種,耐高溫分室脈沖布袋除塵器用于高溫煙氣除塵(也就是煙塵治理),常溫分室脈沖布袋除塵器用于處理常溫粉塵。耐高溫脈沖布袋除塵器在除塵濾料和布袋除塵器結構上都與常溫脈沖布袋除塵器有所不同(客戶如有相關技術疑惑,可來電咨詢我司,廣東綠能環保技術人員將熱情為您解答)。

LFGM分室離線清灰脈沖布袋除塵器構造:
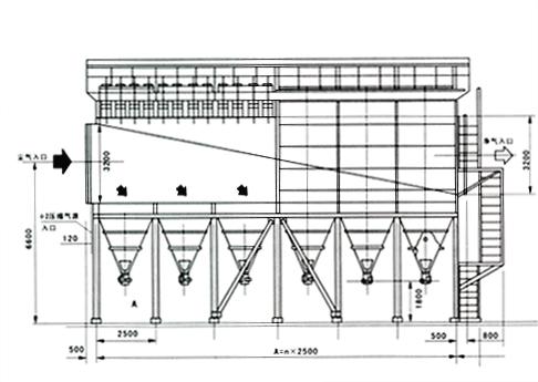
LN-LFGM離線清灰脈沖布袋除塵器非常適合用在廢氣處理風量大、粉塵濃度高的除塵系統中,且離線型脈沖布袋除塵器為分室結構,清灰效果好,因此布袋相比一般脈沖布袋除塵器的使用壽命更長。LN-LFGM分室離線清灰脈沖布袋除塵器由上箱體、中箱體、下箱體(含灰斗)、排灰裝置、梯子平臺、脈沖清灰裝置等六大部分組成。
(1)、上箱體包括貯氣包、脈沖閥、提升閥、可抽出或插入濾袋與袋籠的頂蓋。
(2)、中箱體包括濾袋、籠骨、進排風管。
(3)、下箱體包括立柱、灰斗、檢修孔。
(4)、排灰裝置包括翻板閥、螺旋輸送機或卸灰閥。
(5)、梯子平臺包括直爬梯及檢修平臺欄桿。
(6)、脈沖清灰裝置包括具備定阻力(即壓差)、定時或手動清灰三種控制方式的控制柜。
LN-LFGM分室離線清灰脈沖布袋除塵器普遍用于建材行業,如水泥廠的破碎機配套的布袋除塵器,水泥包裝、庫頂、蓖式冷卻機和各種磨機的中央收塵除塵系統也可采用LFGM分室脈沖布袋除塵器。含塵濃度高達1000g/Nm3的選粉機粉磨收塵系統也只需采用LN-LFGM型氣箱脈沖布袋除塵器即可達到粉塵排放濃度要求,不需要再增加旋風除塵器、重力除塵器等初級除塵設備,既為客戶節省了成本,又減少了除塵設備占地面積和除塵系統氣流阻力。
廣東綠能環保是專業的脈沖布袋除塵器、脫硫脫硝設備、rco催化燃燒設備、rto蓄熱燃燒設備、脈沖濾筒除塵器等環保設備生產廠家,我司LN-LFGM型氣箱式脈沖布袋除塵器也是廣受歡迎的冶金行業配套脈沖布袋除塵器、大型機械鑄造行業配套脈沖布袋除塵器、工礦企業中高濃度粉塵配套脈沖布袋除塵器。LN-LFGM型氣箱式脈沖布袋除塵器具備高于在線清灰脈沖布袋除塵器的凈化效率和粉塵回收能力。

LN-LFGM離線脈沖布袋除塵器特點:
1、LN-LFGM離線脈沖布袋除塵器采用分室停風脈沖噴吹清灰技術,克服了常規脈沖布袋除塵器和分室反吹布袋除塵器(這里指風機反吹式布袋除塵器,是一種低壓反吹清灰的布袋除塵器)的缺點,清灰能力強、除塵效率高、排放濃度低、漏風率小、能耗少、運行穩定可靠、經濟效益好。適用于冶金、建材、水泥、機械、化工、電力、輕工行業的高濃度含塵氣體的粉塵凈化與粉狀物料的回收。
2、由于LFGM氣箱式脈沖布袋除塵器內部采用了鋼板分隔成的分室結構,因此相對于普通的在線清灰脈沖布袋除塵器而言,氣箱式脈沖布袋除塵器的鋼耗量更多、制造成本更高。LFGM氣箱脈沖布袋除塵器的占地面積比在線清灰的普通脈沖布袋除塵器稍大一點,但是由于LN-LFGM氣箱式脈沖布袋除塵器處理高濃度粉塵不需要旋風除塵器作為預除塵設備,因此總體上采用氣箱脈沖布袋除塵器的除塵系統的設備占地面積反而更小。
3、由于LN-LFGM離線脈沖布袋除塵器采用分室停風脈沖噴吹清灰,每噴吹一次都可達到徹底清灰效果,所以清灰周期得到延長,降低了布袋除塵器的清灰能耗,對壓縮空氣的耗量可大為降低。同時,布袋除塵器的清灰周期延長讓濾袋與脈沖閥的疲勞程度也相應減低,從而成倍地提高了濾袋與閥片的壽命。
4、廣東綠能環保的LN-LFGM離線脈沖布袋除塵器的檢修換袋可在不停風機、系統正常運行條件下分室進行。友情提示:廣東綠能環保是專業的袋式除塵器等環保設備廠家,研發生產的布袋除塵器(包括白鐵拼裝式的木工布袋除塵器)的布袋袋口均采用不銹鋼彈性漲圈,密封性能好,牢固可靠。濾袋龍骨采用多角形設計,減少了布袋與龍骨的磨擦,延長了布袋的壽命,又便于卸袋。
5、LN-LFGM氣箱式脈沖布袋除塵器采用上部抽袋方式,換除塵布袋時抽出骨架后,將臟袋投入箱體下部灰斗,由人孔處取出,工人不需要進入袋式除塵器本體,改善了換袋操作條件。
6、LN-LFGM氣箱式脈沖布袋除塵器箱體采用氣密性設計,密封性好,檢查門用優良的密封材料封邊,制作過程中以煤油檢漏,確保不會漏風。





掃一掃添加微信
